220 Lyons Road, RUSSELL LEA
Retail
QUALITY INVESTMENT WITH AUSSIE TENANT
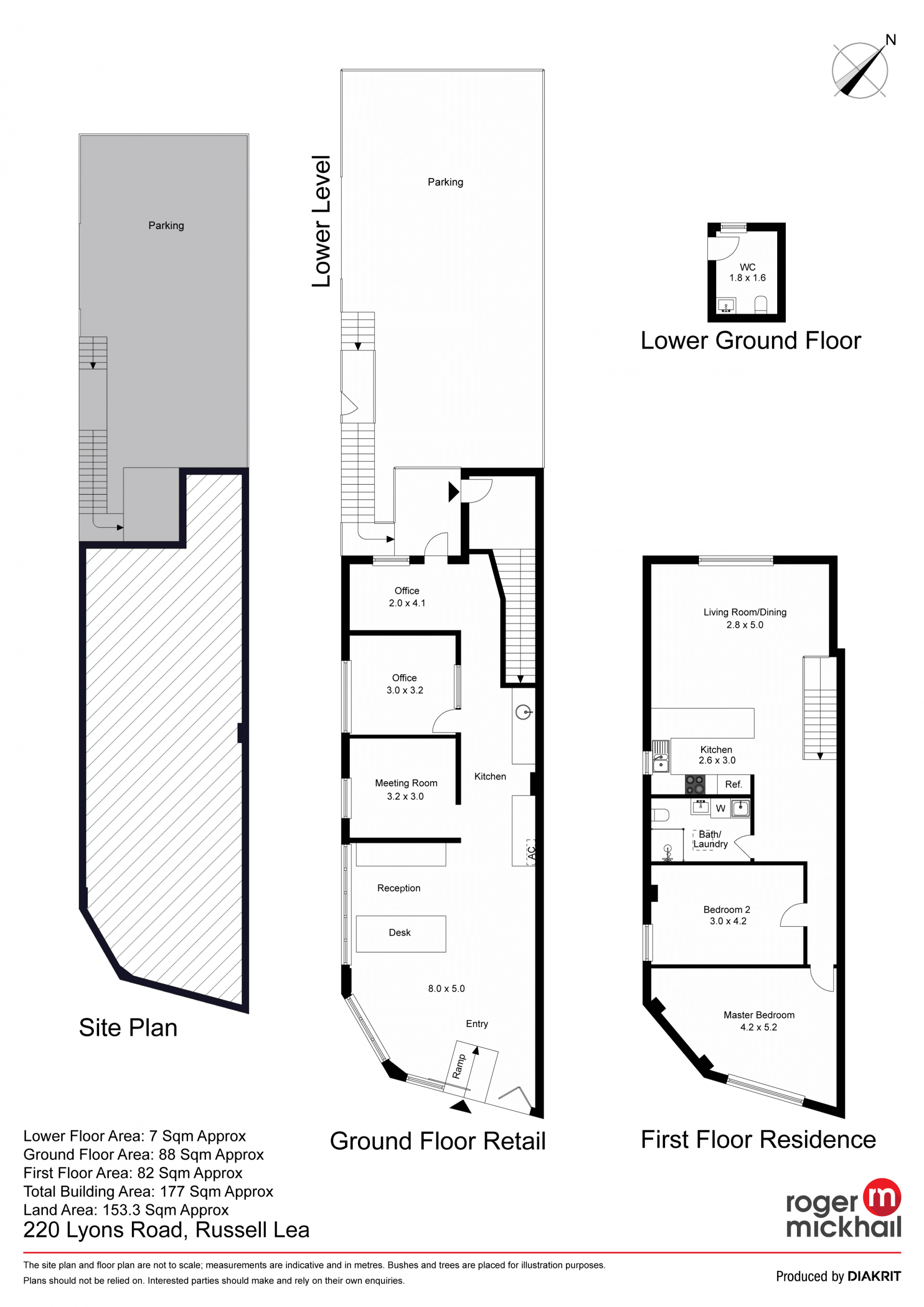
Stylishly refurbished for strong tenant appeal, this traditional commercial terrace offers a quality investment opportunity in this high visibility location. Set on the corner of busy Lyons Road & Hampden Road, its ideally positioned to service the local community and attract passing trade, with easy access to the City. The two-storey property provides a ground floor office, retail or food service space plus 2-car secure parking, which is leased to Australian retail financial services group Aussie until April 2023. The bright and airy 2-bedroom upper level apartment is an attractive home or rental in this ultra convenient location between Drummoyne and Five Dock.
+ Wraparound floor-to-ceiling glass frontage, with security entry door & caf windows
+ Currently configured for commercial tenant with reception & 3 partitioned offices
+ Quality professional fitout with polished concrete floors, carpet, halogen downlights
+ Rear door access to fully-tiled washroom for commercial space, storage & parking
+ Leased to leading financial services group Aussie on 5-year lease with 1 x 5-year option
+ DA Approval for caf or takeaway food service, with potential outdoor seating (STCA)
+ Wide wraparound awning for sheltered outdoor seating & max exposure signage
+ Key arterial route with high traffic volume. City, Chatswood & Hurstville buses at door
+ Electronic gate to 2-car parking & pedestrian access to apartment via Hampden Rd
+ Contemporary upper level apartment with high ceilings, North aspect & expansive views
+ Living with timber floors & quality stone kitchen, 2 double beds, fully-tiled bath with laundry
Please submit an enquiry to request an Information Memorandum.
+ Wraparound floor-to-ceiling glass frontage, with security entry door & caf windows
+ Currently configured for commercial tenant with reception & 3 partitioned offices
+ Quality professional fitout with polished concrete floors, carpet, halogen downlights
+ Rear door access to fully-tiled washroom for commercial space, storage & parking
+ Leased to leading financial services group Aussie on 5-year lease with 1 x 5-year option
+ DA Approval for caf or takeaway food service, with potential outdoor seating (STCA)
+ Wide wraparound awning for sheltered outdoor seating & max exposure signage
+ Key arterial route with high traffic volume. City, Chatswood & Hurstville buses at door
+ Electronic gate to 2-car parking & pedestrian access to apartment via Hampden Rd
+ Contemporary upper level apartment with high ceilings, North aspect & expansive views
+ Living with timber floors & quality stone kitchen, 2 double beds, fully-tiled bath with laundry
Please submit an enquiry to request an Information Memorandum.
